ул. Крылова, 5
mahachkala@kotel-kv.ru
8 (800) 551-70-98
Бесплатно по России
Видео
Фото
Чертеж
Уточните ваш запрос, если товар не подходит

Парогенератор 1200 кг мазутный t 170 °С p 0.9 МПа в Махачкале

Цена парогенератора 1200 кг мазутного t 170 °С p 0.9 Мпа в Махачкале 2 203 000 рублей

Цена на парогенератор 1200 кг мазутный t 170 °С p 0.9 МПа с доставкой от 2 203 000 рублей с НДС
Условия поставки:
В наличии на складе
ТК по России и Казахстану
Безналичный расчет
Этот товар вы можете купить в лизинг

Работает с различными импортными горелками

Удобно размещается в маленьких котельных

Плавная выработка пара даже при подпитке холодной водой, без температурных колебаний

Дымосос не требуется даже при плюсовых температурах, котел работает на самотяге

С котлом поставляется полный комплект запорной арматуры и КИП

Для очистки поверхностей нагрева от сажи остановка котла не требуется

Температура пара до 170 °С

Технические характеристики
Комплект поставки
Дополнительно потребуются
Отзывы
Паропроизводительность, кг/час 1200 Объем паровой части, м³ 0.39
Производительность, т/ч 1.2 Аэродинамическое сопротивление, Па (мм. вод. ст.) 38
Тепловая мощность, кВт 900 Тяга Принудительная
Диапазон регулирования теплопроизводительности, % 40-100 Объем топочной камеры, м³ 2.13
Топливо Мазут Размер топочной камеры, длина*ширина*высота, мм 1195*1900
Низшая теплота сгорания топлива МАЗУТ, кКал/кг 9260 Присоединительные размеры выхода пара, Ду 150
КПД (МАЗУТ), не менее, % 80 Присоединительные размеры по водяному тракту, Ду 32
Расход топлива при максимальной нагрузке котла (МАЗУТ), кг/ч 99 Присоединительные размеры по дымовым газам / диаметр дымовой трубы, мм 450
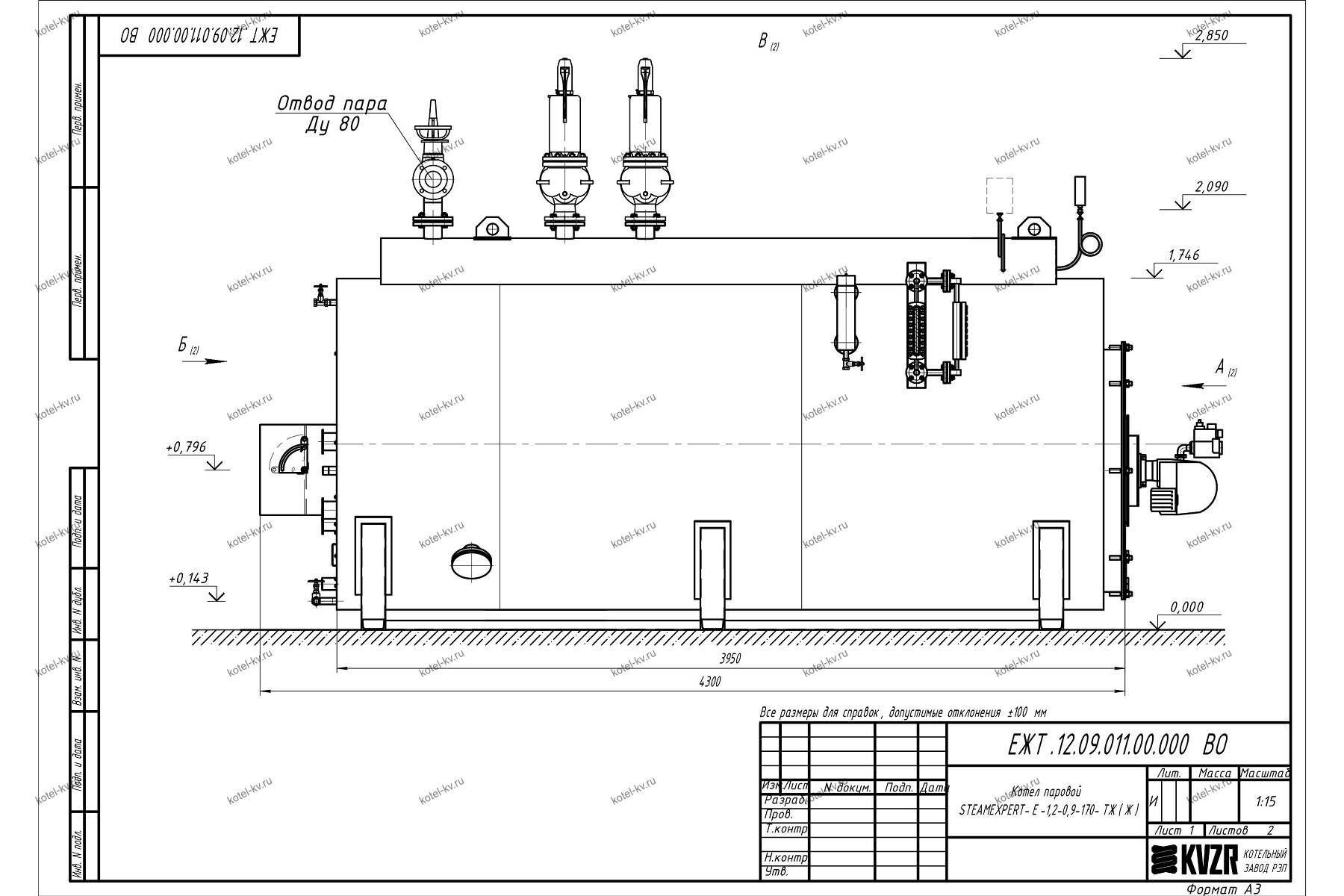
Расход условного топлива, кг/ч 131 Габаритные размеры, длина*ширина*высота, мм 4400*2050*2100
Температура пара, °C 120, 130, 140, 150, 160, 170 Масса, кг 5750
Избыточное давление пара, не более, МПа 0.9 Марка котла STEAMEXPERT
Избыточное давление пара, не более, кгс/см² 9 Энергоэффективность Высокая
Избыточное давление пара, не более, бар 9 Бренд STEAMEXPERT
Полный объем котла, м³ 4.27

Это устройство работает со вспомогательным оборудованием, которое приобретается отдельно. Если вы хотите сразу узнать стоимость всей установки, добавьте заинтересовавшие вас позиции в корзину. Чтобы точно расчитать стоимость доставки до вашего объекта, укажите его адрес в корзине и оправьте нам заявку. Обычно мы отвечаем в течение дня.

Автоматика парового котла Е газ мазут Автоматика парового котла Е газ мазут
Тип управляемого оборудования
Паровой котел Е
Цена скоро
появится
Горелка СибСтронг мазутная Горелка мазутная СибСтронг IL-7S2
Топливо
Мазут
Мощность горелки, КВт
600-1800
Цена скоро
появится
Водоподготовка парового котла Водоподготовка парового котла
Цена скоро
появится
Газоход котла Газоход котла
Цена скоро
появится
Об этом товаре еще нет отзывов. Будьте первым!
Оставьте ваш отзыв
Мазутный парогенератор 1200 кг температура 170
Парогенератор на мазуте 1200 кг температура 170
Изготовление парогенератора 1200 кг температура 170 мазутного
Производство парогенератора 1200 кг температура 170 мазутного

Парогенератор 1200 кг температура 170 мазутный

Парогенератор 1200 кг температура 170 на мазуте

Парогенератор 1200 кг температура 170 мазутный изготовление

Парогенератор 1200 кг температура 170 мазутный производство

Парогенератор мазутный 1200 кг пара в час температурой до 170 °С. Основные характеристики:

  • паропроизводительность 1200 кг пара в час
  • максимальная температура пара 170 °С. Завод производит парогенераторы до 115 °С.
  • давление пара 0.8 МПа, 0.8 кгс/см2;
  • топливо – жидкое топливо, мазут;

Подобрать требуемую мощность парогенератора для вашего предприятия вы можете по ссылке.

Сравнивая цены на парогенераторы, обратите внимание на комплектацию!

Комплект поставки котла нашего производства:

  • Блок парогенератора 1200 - 1 шт
  • Предохранительный клапан парового котла 17с28нж Ду 50 - 2 шт
  • Кран шаровый - 1 шт
  • Вентиль 15Б1П Ду 15 - 1 шт
  • Вентиль 15Б1П Ду 20 - 1 шт
  • Вентиль 15Б1П Ду 25 - 2 шт
  • Вентиль 15Б1П Ду 32 - 1 шт
  • Указатель уровня 12кч11бк №6 - 2 шт
  • Запорное устройство указателя уровня 12б2бк Ду 20 - 2 шт
  • Вентиль чугунный фланцевый 15кч16п1 Д80 Ру25 - 1 шт
  • Клапан обратный Ду 32 - 1 шт
  • Кран трехходовой 11б38бк2 Ду 15 (под манометр, пар) - 3 шт
  • Манометр ДМ2005Сг (ТМ-610.05) - 2 шт
  • Манометр МП160 - 1 шт

Дополнительно для подключения вам потребуются

  • Подпиточный насос CDM 3-18 (2,2 кВт)
  • Мазутная горелка СибСтронг IL-7S2
  • Автоматика
  • Водоподготовка (подбирается на основании химического анализа воды)

Устройство и описание

Промышленный жидкотопливный парогенератор 1200 кг пара в час на мазуте жаротрубный, состоит из двух жаровых труб из листа 5. Пространство между обечайками заполняется водой, сверху устанавливается паросборник, в котором собирается образующийся пар. Для получения высокого КПД котла в хвостовой части топки устанавливаются цельнотянутые трубы диаметром 57 толщиной стенки 3,5 мм сталь 20. По ним также движется и нагревается теплоноситель.

На фронт котельного блока крепится горелка. В топочной камере происходит горение топлива. Газы выходят из топки в верхней части и сразу поступают в дымовую трубу, поставляемую в комплекте. Дымосос для мазутного парогенератора производительностью 1200 кг пара не требуется, установка работает на самотяге.

Подача питательной воды производится питательным насосом. В соответствии с ГОСТ для паровых котлов должно быть установлено два насоса, рабочий и резервный. Дренажи и воздушники производят дренирование трубной системы от шлама и удаление скапливающего воздуха.

На паросборник устанавливаются 2 предохранительных клапана марки 17с28нж.

Принцип работы парогенератора 1200

Мазутное топливо сгорает в топке. Горячие газы омывают трубную систему, нагревают воду и производят насыщенный температурой до 170 град. При необходимости мазутный парогенератор может производить пар меньшей температуры.

Таблица зависимости температуры пара от давления в парогенераторе:

Температура пара, °С 115 120 130 140 150 160 165 160
Давление пара, МПа 0.07 0.1 0.17 0.26 0.38 0.52 0.6 0.7

Дымовые газы проходят трубную систему и поступают дымовую трубу. Парогенератор 1200 кг пара на мазуте укомплектован автоматикой. Заводская автоматика ограничивает предельно допустимые параметры работы и давление пара, управляет вентилятором и подпиточным насосом и регулирует уровень воды в барабане.

Температура сухого насыщенного пара в парогенераторе регулируется изменением давления пара, при необходимости снижения температуры необходимо выставить соответствующее давление пара на электроконтактный манометре. Автоматика парогенератора по заданному давлению производит управление горелкой и, следовательно, интенсивностью горения.

Вода для паровых котлов подготавливается в соответствии с требованиями руководства по эксплуатации, «Правилам технической эксплуатации тепловых энергоустановок» и ГОСТ Р 51232-98. Для подбора водоподготовительной установки требуется провести химический анализ воды.

Все необходимое котельно-вспомогательное оборудование для подключения мазутного парогенератора 1200 кг пара в Махачкалевы можете купить на нашем котельном заводе.

Подключение парогенератора 1200

Вариант подключения арматуры парогенератора Вариант подключения арматуры парогенератора

Подключение и монтаж производятся по проекту.

Для ввода мазутного парового котла с температурой 170 °С в эксплуатацию требуется проведение ПНР и получение в Ростехнадзоре разрешения на ввод парового котла в эксплуатацию. Ростехнадзор проверяет правильность выполнения монтажных и пусконаладочных работ, а также соблюдения требований правил охраны труда.

Безопасность котла

Безопасная эксплуатация котла обеспечивается выполнением требований

  • Инструкции по эксплуатации
  • Правил технической эксплуатации тепловых энергоустановок

Требования к помещениям котельной регламентируются СП 89.13330.2016 «Котельные установки»

Мазутный парогенератор 1200 кг пара в час и температурой пара до 170 град должен управляться автоматикой безопасности, имеющей сертификат соответствия.

Одним из самых важных устройств, обеспечивающих безопасную эксплуатацию парового котла, является предохранительный клапан парового котла. Он обеспечивает сброс пара при превышении давления в котле свыше допустимого и предохраняет установку от разрушения. Необходимые условия монтажа и эксплуатации парогенератора 1200 представлены в паспорте и руководстве по эксплуатации.

Гарантии изготовителя

На заводе изготовителе мазутный парогенератор 1200 подвергается гидравлическому испытанию давлением 1,2 МПа (12 кгс/см2).

Гарантийное обслуживание включает в себя бесплатное устранение скрытых заводских дефектов, замену деталей и узлов вышедших из строя в период гарантийного срока при условии монтажа и эксплуатации оборудования Покупателем в соответствии с его назначением, технической документацией, техническими нормами, правилами ввода в эксплуатацию и эксплуатации данного оборудования.

Срок эксплуатации парогенераторов 10 лет.

Описание товара

    Купить парогенератор 1200 кг мазутный t 170 °с p 0.9 мпа в Махачкале

    Для получения консультации укажите номер вашего телефона
    Смотреь обзор на

    Промышленный мазутный парогенератор производительность 1200 кг пара в час, температура пара не более 170 С°, давление пара 0.9 МПа (9 кгс/см²), топливо - мазут. Применяется для технологических целей в производстве бетона, пеноблоков, газобетона и прочих строительных материалов, в пищевой промышленности для пастеризации молока и консервов, в сельском хозяйстве для запаривания кормов, для подогрева топлива, сушки древесины, в автоклавах и подобных технологических процессах

    Патенты на котельное оборудование

    Патенты

    Смотреть все патенты
    Сертификаты Завода

    Сертификаты

    Смотреть все сертификаты
    Членство в СРО

    Допуски

    Смотреть все допуски
    Отзывы о продукции котельного завода

    Отзывы о продукции котельного завода

    Смотреть все письма
    Аттестованная технология сварки

    Аттестованная технология сварки

    Смотреть все аттестаты
    Цена с НДС
    2 203 000
    Смотреть
    комплект